Pārdodu kuģus >
Velkonis - Pārdod kuģi >
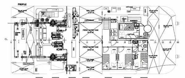
22m Multipurpose Work Boat for Sale
(id10768)
> Fotogrāfijas
Nosūtīt pieprasījumu
Galvenā izvēlne
Kontakti
Kuģu meklēšana
Jaunākās ziņas
2021. gada 16. decembris
Atjaunināts dizains
Mājas lapas dizains ir atjaunināts. Katra lapa ir pielāgota mobilajiem telefoniem. Izbaudiet sūtījumu meklēšanu!
2021. gada 1. decembris
Sadarbības principu maiņa
Šobrīd jūs varat parakstīties uz mūsu abonementu. Maksa par gada abonementu ir 300 USD. Jūs saņemsiet VISA datu bāzi, kā arī jaunus piedāvājumus visā abonementa darbības laikā. Sazinies ar mums